智能型電動調節閥
您的位置:超卓閥門 >>智能型電動調節閥 >> ZDLMG型羅托克高溫套筒調節閥ZDLMG型羅托克高溫套筒調節閥
ROTORK作為世界上主要的執行機構制造廠家,因其耐用的產品而享譽全球,憑借著數十年在各種環境下安裝、使用的經驗,已開發出了一套高可靠性的設計。并使執行機構在操作及安全應用方面處于領先地位。 英國羅托克(ROTORK)公司于90年代推出了智能型電動執行器(IQ系列),世界上首次推出的執行器--可以使你在不打開電動箱端蓋即可進行調試和查詢,與普通執行器相比具有如下特點:
便利的參數遙控設定功能。投入使用前,只要使用由廠家提供的專用設定工具,對準執行器就可進行參數的遙控設定。不僅簡化了設定工作程序,還提高了設備安全運行性,特別是那些要求防爆的場所尤為重要;
豐富的在線顯示功能。采用液晶顯示技術,利用內置式液晶顯示板,不僅可準確顯示閥門開、關狀態和正常閥門開度等,且在參數設定或執行器有故障時,也能顯示出重要信息;
完善的自診斷及保護功能。它可在線診斷出伺服電機過載、過熱情況及電源的狀態等,還能自動識別三相電源相位,緊急情況時,執行器可保位或運行到預先設定的安全位置;
先進的控制功能。采用了計算機技術,把先進自動跟隨控制技術設計為它的一項標準功能。執行器響應速度與實際要求偏差大小成比例,即所謂的“變速控制”,
大大提高了執行器響應品質。
ZDLMG型羅托克高溫套筒調節閥執行機構性能
ZDLMG型羅托克高溫套筒調節閥規格與技術參數
|
公稱通徑DN(mm) |
20 |
25 |
32 |
40 |
50 |
65 |
80 |
100 |
125 |
150 |
200 |
250 |
300 |
350 |
400 |
||
|
額定流量 |
單座 |
P |
1.2~5.0 |
8 |
12 |
20 |
32 |
50 |
80 |
120 |
200 |
280 |
450 |
|
|
|
|
|
雙座 |
N |
|
10 |
16 |
25 |
40 |
63 |
100 |
160 |
250 |
400 |
630 |
1000 |
1600 |
|
|
|
|
套筒 |
M |
|
15 |
|
20 |
30 |
|
75 |
115 |
|
240 |
350 |
|
|
|
|
|
|
公稱壓力(MPa) |
1.6 4.0 6.0 |
||||||||||||||||
|
行程(mm) |
10 |
16 |
25 |
40 |
60 |
100 |
|||||||||||
|
信號 |
0-10mA DC 4-20mA DC |
||||||||||||||||
|
介質溫度℃ |
-200~+200、-40~+250(常溫) -40~+450(中溫) -250~-60(低溫) |
||||||||||||||||
|
流量特性 |
|||||||||||||||||
|
可調范圍 |
30:1 |
||||||||||||||||
|
閥 |
公 |
0.6 |
|
低溫:ZG1Cr18Ni9Ti |
|||||||||||||
|
1.6 |
常溫:ZG230-450 |
||||||||||||||||
|
4.0 |
低溫:ZG1Cr18Ni9Ti |
||||||||||||||||
|
常溫:ZG230-450、ZG1Cr18Ni9Ti |
|||||||||||||||||
|
中溫:ZG230-450、ZG1Cr18Ni9Ti |
|||||||||||||||||
|
6.4 |
低溫:ZG1Cr18Ni9Ti |
||||||||||||||||
|
常溫:ZG230-450、ZG1Cr18Ni9Ti |
|||||||||||||||||
|
中溫:ZG230-450、ZG1Cr18Ni9Ti |
|||||||||||||||||
|
法蘭尺寸 |
符合JB78-59、JB79-59標準,可按JB/79.1-94、JB、ANSI、JIS、DIN 等標準訂貨生產 |
||||||||||||||||
|
閥芯材質 |
1Cr18Ni9,SS304,0Cr18Ni12Mo2Ti,SS316,ZG1Cr18Ni9Ti |
||||||||||||||||
|
上閥蓋型式 |
普通式(常溫型),熱片式(中溫型),長勁式(低溫式) |
||||||||||||||||
ZDLMG型羅托克高溫套筒調節閥主要技術性能指標
|
項目 |
指標 |
|
|
基本誤差% |
±5.0 |
|
|
回差% |
3.0 |
|
|
死區% |
3.0 |
|
|
泄漏量 |
單座閥 |
|
|
雙座閥 |
符合JB/T7387-94 Ⅲ級 小于閥的額定容量×10-3 |
|
|
套筒閥 |
符合JB/T7387-94 Ⅲ級 小于閥的額定容量×10-3 |
|
ZDLMG型羅托克高溫套筒調節閥允許壓差
|
使用情況 |
閥芯處于流開狀態,關閉時閥后壓力P2=0 |
||||||||||
|
公稱通徑 |
閥座直徑 |
執行機構 |
允許壓差(sMPa) |
||||||||
|
電動直通單座調節閥 |
|||||||||||
|
PN1.6(MPa) |
PN6.4(MPa) |
||||||||||
|
3/4 |
3 |
4 |
5 |
|
|
|
|||||
|
6 |
7 |
8 |
|||||||||
|
|
10 |
12 |
15 |
20 |
400,1000,2500 |
公稱壓力 |
3.8 |
2.7 |
1.7 |
1.0 |
|
|
公稱壓力 |
4.34.3 |
2.5 |
|||||||||
|
25 |
26 |
400,1000,2500 |
0.5 |
公稱壓力 |
0.6 |
3.6 |
|
||||
|
32 |
32 |
0.4 |
公稱壓力 |
0.4 |
2.3 |
|
|||||
|
40 |
40 |
400,1000 |
0.7 |
1.0 |
0.7 |
1.5 |
|
||||
|
50 |
50 |
0.5 |
1.0 |
0.5 |
1.0 |
|
|||||
|
65 |
66 |
6400,16000 |
1.4 |
1.4 |
|||||||
|
80 |
80 |
1.0 |
1.0 |
||||||||
|
100 |
100 |
0.6 |
0.6 |
||||||||
|
125 |
125 |
6400,16000 |
0.5 |
1.0 |
0.5 |
1.0 |
|||||
|
150 |
150 |
0.3 |
0.7 |
0.3 |
0.7 |
||||||
|
200 |
200 |
0.2 |
0.4 |
0.2 |
0.4 |
||||||
|
250 |
|
16000 |
0.3 |
0.3 |
|||||||
|
300 |
|
0.2 |
0.2 |
||||||||
注:雙座、套筒閥一般可承受≤公稱壓力,單座調節閥差壓可參考上表。
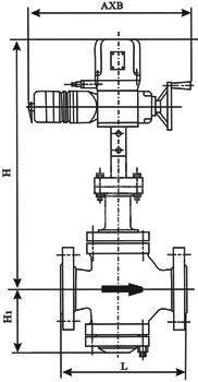
ZDLMG型羅托克高溫套筒調節閥外形尺寸
1、電動單座、雙座調節閥
|
公稱通徑 |
A |
B |
L |
H |
H1 |
||||||
|
ZRZP單座 |
ZRZN雙座 |
||||||||||
|
PN1.6 |
PN4.0 |
PN6.4 |
普通型 |
熱片型 |
普通型 |
熱片型 |
ZRZP |
ZRZN |
|||
|
20 |
230 |
460 |
180 |
185 |
190 |
653 |
804 |
/ |
/ |
65 |
/ |
|
25 |
185 |
190 |
205 |
665 |
816 |
670 |
937 |
99 |
104 |
||
|
32 |
200 |
210 |
220 |
671 |
822 |
673 |
943 |
105 |
107 |
||
|
40 |
220 |
230 |
240 |
683 |
834 |
693 |
982 |
116 |
126 |
||
|
50 |
230 |
530 |
250 |
255 |
265 |
698 |
849 |
698 |
992 |
131 |
131 |
|
65 |
275 |
285 |
295 |
789 |
949 |
799 |
1147 |
165 |
175 |
||
|
80 |
305 |
310 |
325 |
792 |
952 |
809 |
1177 |
173 |
190 |
||
|
100 |
350 |
355 |
370 |
796 |
956 |
821 |
1207 |
177 |
202 |
||
|
125 |
260 |
630 |
410 |
425 |
440 |
847 |
1062 |
872 |
1357 |
225 |
250 |
|
150 |
450 |
460 |
475 |
855 |
1070 |
882 |
1377 |
233 |
260 |
||
|
200 |
550 |
560 |
570 |
894 |
1109 |
924 |
1459 |
272 |
302 |
||
|
250 |
670 |
660 |
670 |
1156 |
1368 |
1156 |
1368 |
422 |
422 |
||
|
300 |
740 |
785 |
800 |
1215 |
1427 |
1215 |
1427 |
484 |
484 |
||
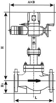
2、電動套筒調節閥
|
公稱通徑 |
L(mm) |
A |
B |
H(mm) |
H1(mm) |
|||
|
PN16 |
PN40 |
PN64 |
普通型 |
熱片型 |
||||
|
25 |
184 |
197 |
230 |
230 |
460 |
668 |
819 |
75 |
|
40 |
222 |
235 |
260 |
684 |
835 |
95 |
||
|
50 |
254 |
267 |
300 |
684 |
835 |
98 |
||
|
80 |
295 |
317 |
380 |
230 |
530 |
785 |
946 |
130 |
|
100 |
350 |
368 |
430 |
795 |
946 |
156 |
||
|
150 |
480 |
473 |
550 |
260 |
630 |
945 |
1160 |
208 |
|
200 |
600 |
615 |
650 |
945 |
1160 |
250 |
||
|
250 |
650 |
670 |
690 |
1050 |
1320 |
265 |
||
|
300 |
740 |
770 |
800 |
1145 |
1320 |
265 |
||
電動調節閥的相關產品:









